A 30 rooms unfinished apartment building near Ban Chang, Rayong
Price
Description
A 30 rooms unfinished apartment building near Ban Chang, Rayong
NOTE! Owner wants to sell. Now price reduced from 25,000,000 THB to 15,000,000 THB.
The building is located near Ban Chang in Rayong with direct but also on a newly widened road that provides access to the Rayong motorway. The apartment building is positioned on 2 Rai, 1 Ngan and 58 sqWha land (3,832 sqm).
Approximately one Rai of the total land is used for this project, leaving the other portion empty for either a second apartment building or some other building(s) in the future.
The main road that the apartment project is located on connects at one end to Highway 36 which goes to Rayong. It also has a route that takes one to Ban Chang and Map-Ta-Phut.
The main road that goes to Rayong Highway 36 has recently been widened and new commercial construction has begun.
The area around the apartment project is in a Purple zone with some existing factories already nearby. There are also new factories planned or in the early stages of construction. It is highly likely that the reason the government has widened the main road is to handle an increase in the number of factories in the area.
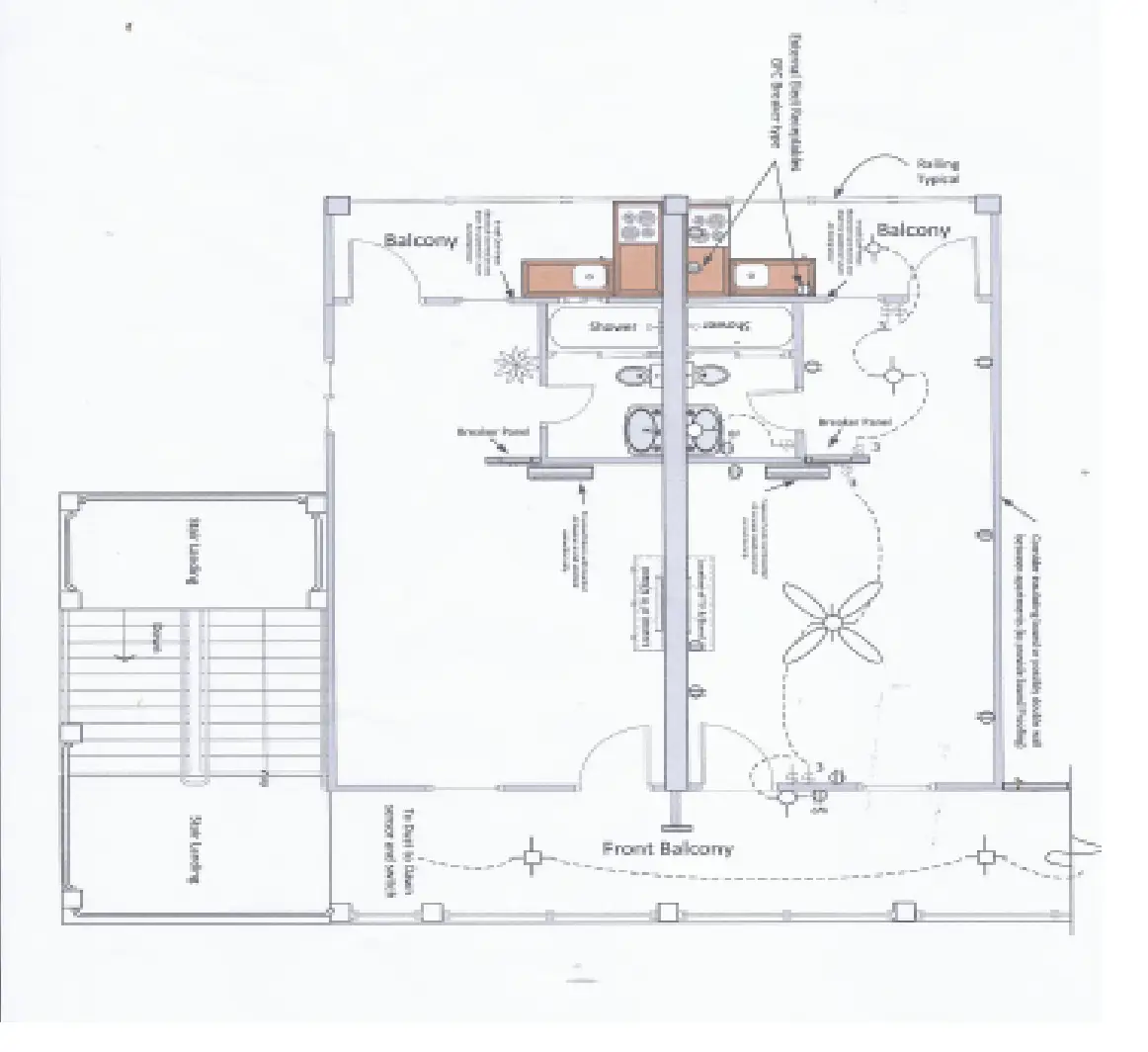
The project, which is 65% complete (according to the seller), consists of 30 identical apartments on 3 floors with 10 apartments per floor. Each apartment will consist of a room with a bathroom, as well as a balcony with a kitchen cabinet. Each apartment has a living area of 34 sq m.
In the middle of the building, with 5 apartments on each side, there is a main flight of stairs to each of the 3 floors. From the stairs, an external corridor/balcony leads to the apartments.
The intended customer group for renting these apartments are workers in these factories.
At the front of the apartment building there is ample space for parking spaces with sufficient room left to build a laundromat and if desired a small convenience store, etc. in the front. Look through the photographs.
Although the street on which the apartment project is located is currently a gravel road adjacent to a newly widened paved main road, we understand that this street is one of the next streets on the government's list to be paved.
It was initially bypassed when other streets along the road were being paved, as at that time there were no houses or other buildings on this street and our apartment complex had not yet begun.
In addition to the apartment project currently under construction, there are now several houses built on this street, so paving the street is as we understand in the local government’s plans. The entrance to the apartment project is approximately 90 to 100 meters from the newly widened main road.
Please note that the entire land of 2 Rai, 1 Ngan and 58 sqWha land (3,832 sqm) is included in the price.
The owner/seller has described the project in a 48-page document. It can be requested if interested. The Owner/Seller can and will provide the buyer with the detailed architectural drawings for the apartment building once the sale is confirmed. It should be noted that although the building is a 3 story structure it’s foundation was designed to hold up to 5 floors.
Video: https://youtu.be/w1oJnbThErI?si=t78ervSUxylLnkXG
ID: CB-BC30
Price: 15,000,000 THB (previously 25,000,000 THB)
For those who need help with financing, Naina Rayong can offer good contacts.
Freehold
Year of construction: 2022 - 2024
Naina Rayong Co., Ltd.
nainarayong@gmail.com
Mobile: +66 92 545 32 87, +66 94 562 32 91
Overview
- Type: Commercial
- Year Built: 2022
- Area: Nikhom Phatthana
- Location: Makham Khu
- Living Area Size: 1367 Sqm
- Land Size: 3832 Sqm

